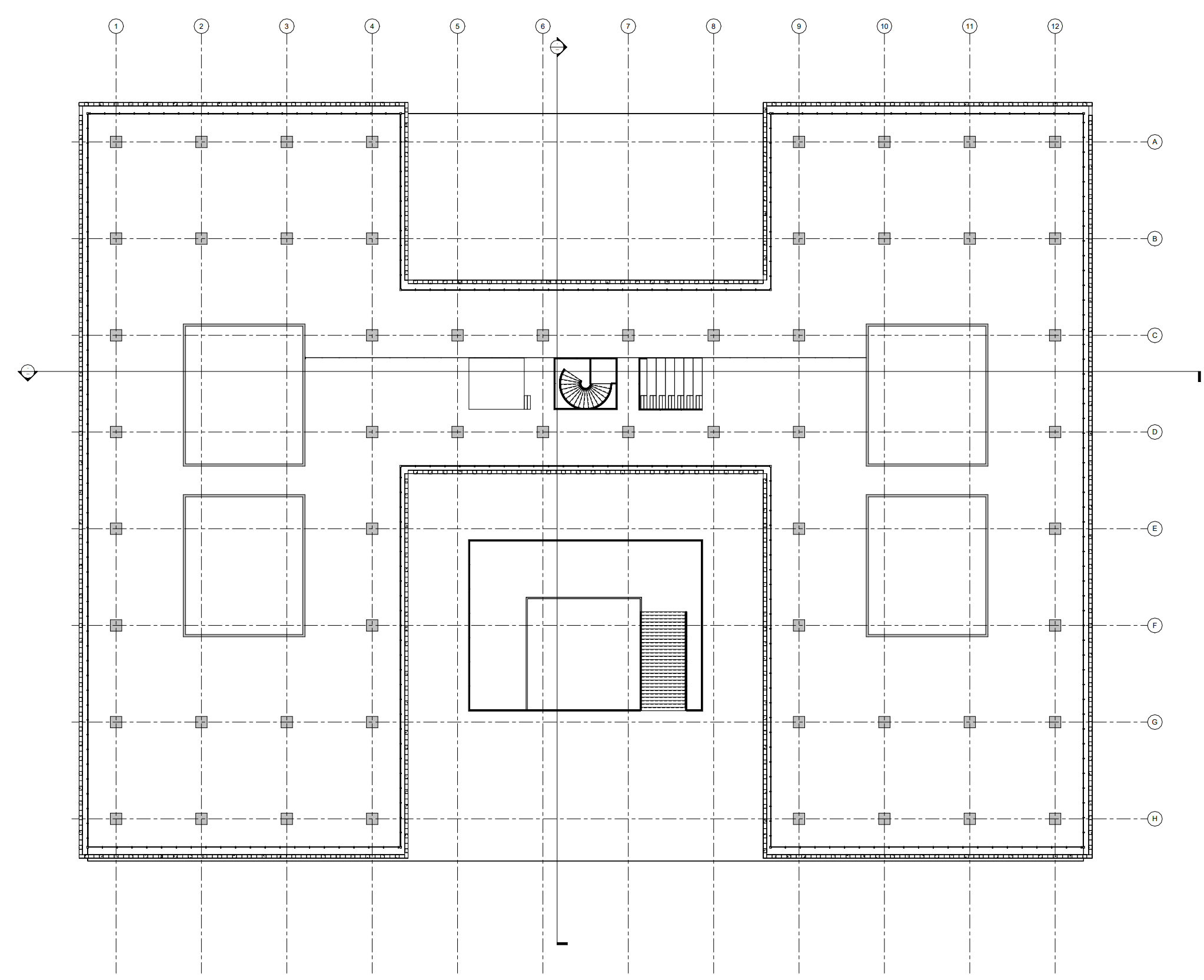
2023
Year :Ba3
Softwares :Revit, Autocad
Functions :Offices
Type :Renovation
Location :Belgium, Brussel