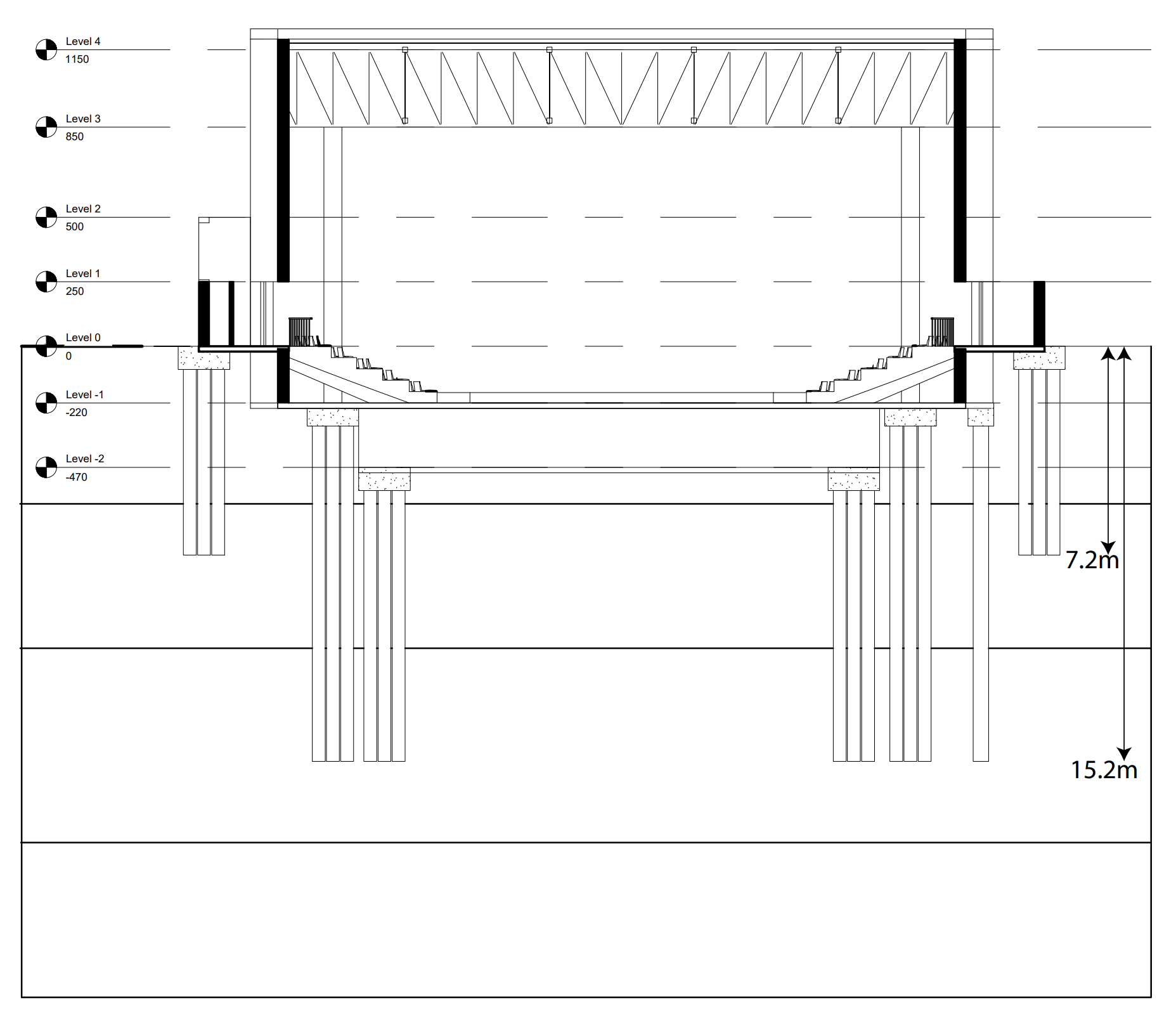
Circus

2023

Year :
Ba3

Softwares :
Revit, Autocad

Functions :
Entertainment

Type :
New construction

Location :
Belgium, Marchin